您所在的位置:
首页
>>
新闻中心
>>
天水新闻
>>
麦积
>>正文
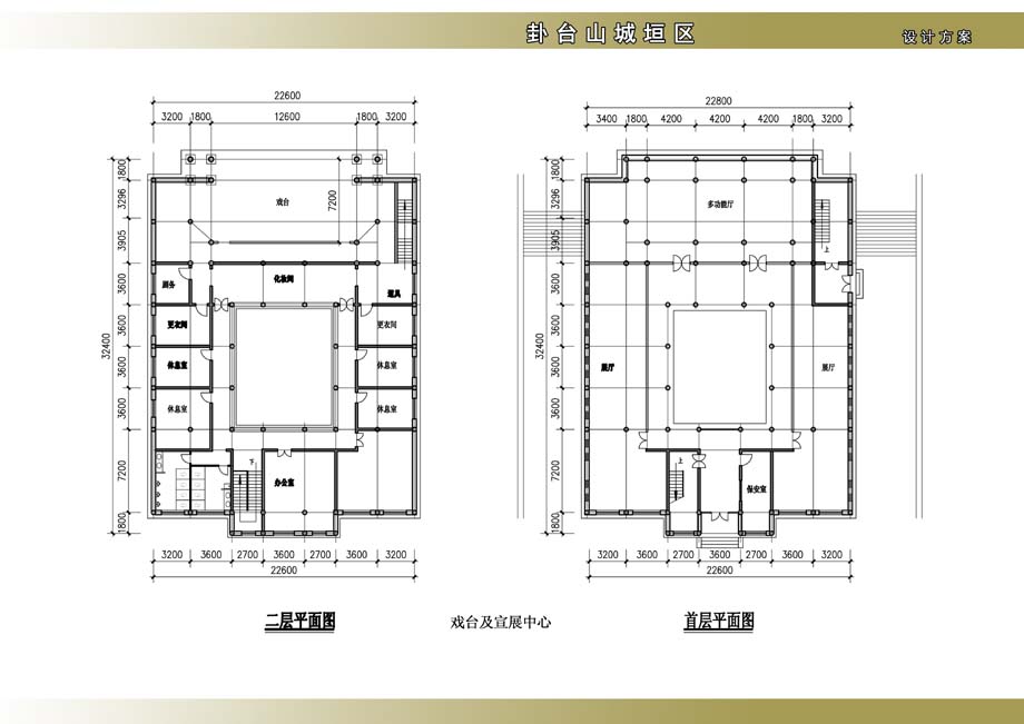
卦台山城垣区规划方案征求意见(附两套方案效果图)
(2010-9-2 15:12:55) 来源:麦积区旅游局
打印本页
城垣区其它建筑
本新闻共
4
页,当前在第
04
页
01
02
03
04
摄影相关图片
谢建平摄影:曲溪(组图)
李忠摄影:春到秦州(图)
麦积山雪景(组图)
摄影:幕下秦州(图)
幕下藉河两岸(组图)
摄影:冬日天水湖(组图)
天水市2009年新闻纪实画册
俯瞰秦州新貌(组图)
纪铁嘴秦州谝康熙