
甘肃泰如房地产开发有限责任公司秉承“诚实守信、创新发展”的企业精神,创造了良好的发展环境,管理制度日臻完善,培养了一支团结务实、敬业实干的管理团队。公司始终坚持“在改变人居环境中求生存,在为业主负责中求发展”为经营理念。在国家大力提倡扶持民营经济的大背景下,在政府的关心和支持下,公司取得长足发展。随着市场经济的日益变化,人民生活水平的逐渐提高,居住也由原来的温饱型向小康型转化。居住已倡导“绿色、低碳、舒适、安逸”的高质量环境。

由公司独立开发正在建设的“北坛颐和居”项目是甘肃城乡规划设计研究院设计,总投资24594.2091万元,建筑面积49140.98平方,地下一层,地上二十六层商住为一体的的大型项目。该项目地处秦安县成纪大道以北,大众步行街以东,毗邻将要建设的秦安县站前广场,与映南商业街相望。地理位置优越、交通便利,将形成以该项目为中心的黄金商业地带。人居环境真正体现了“商中求逸、闹中求静”的都市氛围。该项目建成后将是我县规划史上的又一创举,将会成为以北坛商业圈为中心的地标性建筑,构成与秦安县广场遥相呼应的一道风景线。公司不惜寸土寸金的地块优势,以环保、怡人、舒适、便捷等特点,打造小康型住宅,建设满足不同阶层客户的居住要求。以人为本的设计理念,创造更加舒适、安逸的高质量居住环境,协调室内外空间的和谐统一。项目产权手续齐全,设施完善。该项目将以一流的规划、一流的设计、一流的施工、一流的管理、一流的服务、一流的配套将成为我公司稳步发展的坚实基础。

“北坛颐和居”系甘肃泰如房地产开发有限责任公司顶级之作,该项目在选址、设计、施工、物业服务等方面不惜重金、精心策划、深入考察,旨在为业主打造一个安全舒适,设施完善,交通便捷、绿色环保,自然环境与人文环境相交融的高品质现代化住宅。

优秀的产品离不了良好的售后服务,公司旗下有服务于北坛商贸城多年的,天水鼎安物业服务有限公司严阵以待。从项目建设初期就深入施工各个环节,熟悉项目的每一个施工细节,便于将来更好的管理,服务与每一位业主。
楼房无言,品格自现,该项目产权手续齐全,设施完善。有着一流的规划、一流的设计、一流的施工、一流的管理、一流的服务、是您安家落户的不二之选。
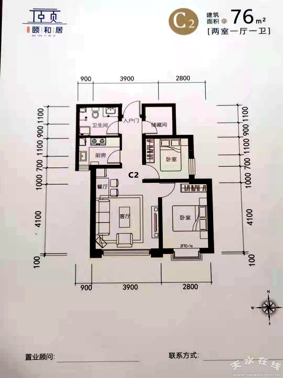
户型图



展厅地址:秦安县北坛3号商贸城一层外侧42号
项目电话:0938-6522586,18919235383
|